---
title: "Afd. 36 - Skovvej og Sundsvallgade - Sønderborg"
description: "Afd. 36 - Skovvej og Sundsvallgade - Sønderborg"
date: "2026-05-06"
created: "2025-10-24"
---

-
-
-
-

https://maps.google.dk/?q=54.9027198,9.8044019

# Afd. 36 - Skovvej og Sundsvallgade - Sønderborg

## Velkommen til Sønderborg Andelsboligforening

**Afdelingsadresser**
Skovvej 7,9,11,13, Sundsvallgade 23,25,27

## Afdelingsinfo

Beliggenhed

Se mere

Tæt ved centrum, skov, strand, skole, daginstitution og indkøbsmuligheder.

Ejendommen

Se mere

1 plans rækkehuse med 4-5 værelser.

El, vand og varme

Se mere

El, vand og varme afregnes direkte til forsyning.

Garager

Se mere

Mulighed for leje af garage.

Husdyr

Se mere

2 husdyr. Der tages forbehold for beslutninger taget på afdelingsmødet, og henvises til ordensreglerne.

Hårde hvidevarer

Se mere

Afd. 36 har ingen hårde hvidevarer i boligen.

TV

Se mere

Frit valg af udbyder.

Varme

Se mere

Fjernvarme.

Værelser

Se mere

Afd. 36 har ingen gæsteværelser. Der er mulighed for leje af værelser på Bygtoften 2.

                        Se flere

## Boliger i afdelingen

Almindelig bolig

4 rum

Almindelig bolig

Almindelig bolig

5 rum

Almindelig bolig

Boligtype

Værelser

Størrelse

Husleje

Indskud/dp

Plantegning

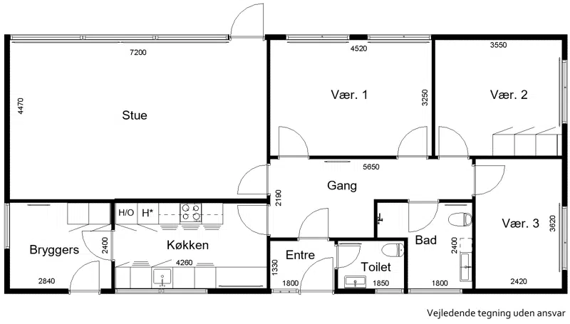
Almindelig bolig

4

97 m²

5242 kr.

23500 kr.

![](https://salus-bolig.dk/i/MOLIRIMEDIA/86fe649e-8e58-4f6b-7dcb-08de9ba436cb?width=800)

Almindelig bolig

4

115 m²

6308 kr.

27900 kr.

![](https://salus-bolig.dk/i/MOLIRIMEDIA/61d87b78-1682-4e55-b844-08de11fe030a?width=800)

Almindelig bolig

5

115 m²

6308 kr.

27900 kr.

![](https://salus-bolig.dk/i/MOLIRIMEDIA/6cd5f91a-0fd2-495d-bbb4-08de11fe030a?width=800)

## Afdelingsbestyrelsen

Navn

Titel

Valgperiode

Gitte Nielsen

Formand

Periode: 11.09.2024 - 10.11.2026

Bente Anine Helene Thrane

Bestyrelsesmedlem

Periode: 11.09.2024 - 10.11.2026

Dagny Thuesen

Bestyrelsesmedlem

Periode: 08.09.2025 - 07.11.2027

## Afdelingsdokumenter

###

                                                Indkaldelse til afdelingsmøde

[03 36 Indkaldelse til afdelingsmøde 20250908.pdf](https://salus-bolig.dk/p/Files/Boligdata/AfdelingsdokumenterWebDok/03_036/Indkaldelse%20til%20afdelingsm&#xF8;de/03-36-Indkaldelse-til-afdelingsm&#xF8;de-20250908.pdf)
                                            [03 36 Indkaldelse til afdelingsmøde 20240911.pdf](https://salus-bolig.dk/p/Files/Boligdata/AfdelingsdokumenterWebDok/03_036/Indkaldelse%20til%20afdelingsm&#xF8;de/03-36-Indkaldelse-til-afdelingsm&#xF8;de-20240911.pdf)
                                            [03 36 Indkaldelse til afdelingsmøde 20230907.pdf](https://salus-bolig.dk/p/Files/Boligdata/AfdelingsdokumenterWebDok/03_036/Indkaldelse%20til%20afdelingsm&#xF8;de/03-36-Indkaldelse-til-afdelingsm&#xF8;de-20230907.pdf)
                                            [03 36 Indkaldelse til afdelingsmøde 20220908.pdf](https://salus-bolig.dk/p/Files/Boligdata/AfdelingsdokumenterWebDok/03_036/Indkaldelse%20til%20afdelingsm&#xF8;de/03-36-Indkaldelse-til-afdelingsm&#xF8;de-20220908.pdf)
                                            [03 36 Indkaldelse til afdelingsmøde 20210902.pdf](https://salus-bolig.dk/p/Files/Boligdata/AfdelingsdokumenterWebDok/03_036/Indkaldelse%20til%20afdelingsm&#xF8;de/03-36-Indkaldelse-til-afdelingsm&#xF8;de-20210902.pdf)

###

                                                Referat fra afdelingsmøde

[03 36 Referat fra afdelingsmøde 20250908.pdf](https://salus-bolig.dk/p/Files/Boligdata/AfdelingsdokumenterWebDok/03_036/Referat%20fra%20afdelingsm&#xF8;de/03-36-Referat-fra-afdelingsm&#xF8;de-20250908.pdf)
                                            [03 36 Referat fra afdelingsmøde 20240911.pdf](https://salus-bolig.dk/p/Files/Boligdata/AfdelingsdokumenterWebDok/03_036/Referat%20fra%20afdelingsm&#xF8;de/03-36-Referat-fra-afdelingsm&#xF8;de-20240911.pdf)
                                            [03 36 Referat fra afdelingsmøde 20230907.pdf](https://salus-bolig.dk/p/Files/Boligdata/AfdelingsdokumenterWebDok/03_036/Referat%20fra%20afdelingsm&#xF8;de/03-36-Referat-fra-afdelingsm&#xF8;de-20230907.pdf)
                                            [03 36 Referat fra afdelingsmøde 20220908.pdf](https://salus-bolig.dk/p/Files/Boligdata/AfdelingsdokumenterWebDok/03_036/Referat%20fra%20afdelingsm&#xF8;de/03-36-Referat-fra-afdelingsm&#xF8;de-20220908.pdf)
                                            [03 36 Referat fra afdelingsmøde 20210902.pdf](https://salus-bolig.dk/p/Files/Boligdata/AfdelingsdokumenterWebDok/03_036/Referat%20fra%20afdelingsm&#xF8;de/03-36-Referat-fra-afdelingsm&#xF8;de-20210902.pdf)

###

                                                Vedligeholdelsesreglement

[03 36 Vedligeholdelsesreglement 2025.pdf](https://salus-bolig.dk/p/Files/Boligdata/AfdelingsdokumenterWebDok/03_036/Vedligeholdelsesreglement/03-36-Vedligeholdelsesreglement-2025.pdf)

###

                                                Råderetsreglement

[03 36 Råderetsreglement 2024.pdf](https://salus-bolig.dk/p/Files/Boligdata/AfdelingsdokumenterWebDok/03_036/R&#xE5;deretsreglement/03-36-R&#xE5;deretsreglement-2024.pdf)

###

                                                Husorden

[03 36 Husorden 20240911.pdf](https://salus-bolig.dk/p/Files/Boligdata/AfdelingsdokumenterWebDok/03_036/Husorden/03-36-Husorden-20240911.pdf)

## Placering
