---
title: "Afd. 16 - Hjelmrode 2-96"
description: "Afd. 16 - Hjelmrode 2-96"
date: "2026-02-18"
created: "2025-10-23"
---

-

https://maps.google.dk/?q=55.0327441,9.3965318

# Afd. 16 - Hjelmrode 2-96

Afdeling 16

## Velkommen til Afd. 16 - Hjelmrode 2-96

**Afdelingsadresser**
Hjelmrode 2-96

## Afdelingsinfo

Beliggenhed

Se mere

Beliggende lidt udenfor centrum, men tæt på busstation, skole, daginstitution og indkøbsmuligheder.

El, vand og varme

Se mere

Vand afregnes aconto. Varme og el, afregnes direkte til forsyningen.

Garager

Se mere

18 garager.

Husdyr

Ja

1 hund og 1 kat.Der tages forbehold for beslutninger taget på afdelingsmødet, og henvises til ordensreglerne.

Hårde hvidevarer

Se mere

Der er køleskab, fryser, ovn, kogeplader og vaskemaskine i boligerne.

TV

Se mere

Frit valg af udbyder.

Varme

Se mere

Fjernvarme.

Fælleslokaler

Se mere

Afdelingen har ingen fælleshus. Der er mulighed for leje af andre lokaler.

Legeplads

Se mere

Nærliggende legepladser.

                        Se flere

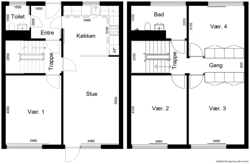
## Boliger i afdelingen

Almindelig bolig

5 rum

Almindelig bolig

Boligtype

Værelser

Størrelse

Husleje

Indskud/dp

Plantegning

Almindelig bolig

5

130 m²

6716 kr.

31500 kr.

![](https://salus-bolig.dk/i/MOLIRIMEDIA/eb75415c-b607-4e51-bcd7-08de11fe030a?width=800)

## Afdelingsbestyrelsen

Navn

Titel

Valgperiode

Laila Bøttcher

Formand

Periode: 01.10.2021 - 30.10.2027

Julie Ulbrandt Edemann-nielsen

Bestyrelsesmedlem

Periode: 03.09.2024 - 30.10.2027

Karina Andersen

Bestyrelsesmedlem

Periode: 01.10.2021 - 30.10.2026

Lotte Petersen

Bestyrelsesmedlem

Periode: 05.09.2023 - 30.11.2026

Monica Boytang Smiler

Bestyrelsesmedlem

Periode: 05.09.2023 - 30.10.2026

## Afdelingsdokumenter

###

                                                Indkaldelse til afdelingsmøde

[11 16 Indkaldelse til ekstraordinært afdelingsmøde 20230222.pdf](https://salus-bolig.dk/p/Files/Boligdata/AfdelingsdokumenterWebDok/11_016/Indkaldelse%20til%20afdelingsm&#xF8;de/11-16-Indkaldelse-til-ekstraordin&#xE6;rt-afdelingsm&#xF8;de-20230222.pdf)
                                            [11 16 Indkaldelse til ekstraordinært afdelingsmøde 20211109.pdf](https://salus-bolig.dk/p/Files/Boligdata/AfdelingsdokumenterWebDok/11_016/Indkaldelse%20til%20afdelingsm&#xF8;de/11-16-Indkaldelse-til-ekstraordin&#xE6;rt-afdelingsm&#xF8;de-20211109.pdf)
                                            [11 16 Indkaldelse til afdelingsmøde 20250901.pdf](https://salus-bolig.dk/p/Files/Boligdata/AfdelingsdokumenterWebDok/11_016/Indkaldelse%20til%20afdelingsm&#xF8;de/11-16-Indkaldelse-til-afdelingsm&#xF8;de-20250901.pdf)
                                            [11 16 Indkaldelse til afdelingsmøde 20240903.pdf](https://salus-bolig.dk/p/Files/Boligdata/AfdelingsdokumenterWebDok/11_016/Indkaldelse%20til%20afdelingsm&#xF8;de/11-16-Indkaldelse-til-afdelingsm&#xF8;de-20240903.pdf)
                                            [11 16 Indkaldelse til afdelingsmøde 20230905.pdf](https://salus-bolig.dk/p/Files/Boligdata/AfdelingsdokumenterWebDok/11_016/Indkaldelse%20til%20afdelingsm&#xF8;de/11-16-Indkaldelse-til-afdelingsm&#xF8;de-20230905.pdf)
                                            [11 16 Indkaldelse til afdelingsmøde 20220906.pdf](https://salus-bolig.dk/p/Files/Boligdata/AfdelingsdokumenterWebDok/11_016/Indkaldelse%20til%20afdelingsm&#xF8;de/11-16-Indkaldelse-til-afdelingsm&#xF8;de-20220906.pdf)
                                            [11 16 Indkaldelse til afdelingsmøde 20210913.pdf](https://salus-bolig.dk/p/Files/Boligdata/AfdelingsdokumenterWebDok/11_016/Indkaldelse%20til%20afdelingsm&#xF8;de/11-16-Indkaldelse-til-afdelingsm&#xF8;de-20210913.pdf)

###

                                                Referat fra afdelingsmøde

[11 16 Referat fra ekstraordinært afdelingsmøde 20230222.pdf](https://salus-bolig.dk/p/Files/Boligdata/AfdelingsdokumenterWebDok/11_016/Referat%20fra%20afdelingsm&#xF8;de/11-16-Referat-fra-ekstraordin&#xE6;rt-afdelingsm&#xF8;de-20230222.pdf)
                                            [11 16 Referat fra ekstraordinært afdelingsmøde 20211109.pdf](https://salus-bolig.dk/p/Files/Boligdata/AfdelingsdokumenterWebDok/11_016/Referat%20fra%20afdelingsm&#xF8;de/11-16-Referat-fra-ekstraordin&#xE6;rt-afdelingsm&#xF8;de-20211109.pdf)
                                            [11 16 Referat fra afdelingsmøde 20250901.pdf](https://salus-bolig.dk/p/Files/Boligdata/AfdelingsdokumenterWebDok/11_016/Referat%20fra%20afdelingsm&#xF8;de/11-16-Referat-fra-afdelingsm&#xF8;de-20250901.pdf)
                                            [11 16 Referat fra afdelingsmøde 20240903.pdf](https://salus-bolig.dk/p/Files/Boligdata/AfdelingsdokumenterWebDok/11_016/Referat%20fra%20afdelingsm&#xF8;de/11-16-Referat-fra-afdelingsm&#xF8;de-20240903.pdf)
                                            [11 16 Referat fra afdelingsmøde 20230905.pdf](https://salus-bolig.dk/p/Files/Boligdata/AfdelingsdokumenterWebDok/11_016/Referat%20fra%20afdelingsm&#xF8;de/11-16-Referat-fra-afdelingsm&#xF8;de-20230905.pdf)
                                            [11 16 Referat fra afdelingsmøde 20220906.pdf](https://salus-bolig.dk/p/Files/Boligdata/AfdelingsdokumenterWebDok/11_016/Referat%20fra%20afdelingsm&#xF8;de/11-16-Referat-fra-afdelingsm&#xF8;de-20220906.pdf)
                                            [11 16 Referat fra afdelingsmøde 20210913.pdf](https://salus-bolig.dk/p/Files/Boligdata/AfdelingsdokumenterWebDok/11_016/Referat%20fra%20afdelingsm&#xF8;de/11-16-Referat-fra-afdelingsm&#xF8;de-20210913.pdf)

###

                                                Vedligeholdelsesreglement

[1116 Vedligeholdelsesreglement.pdf](https://salus-bolig.dk/p/Files/Boligdata/AfdelingsdokumenterWebDok/11_016/Vedligeholdelsesreglement/1116-Vedligeholdelsesreglement.pdf)

###

                                                Husorden

[11 16 Husorden 20250901.pdf](https://salus-bolig.dk/p/Files/Boligdata/AfdelingsdokumenterWebDok/11_016/Husorden/11-16-Husorden-20250901.pdf)

###

                                                Forretningsorden

[11 16 Forretningsorden 20250901.pdf](https://salus-bolig.dk/p/Files/Boligdata/AfdelingsdokumenterWebDok/11_016/Forretningsorden/11-16-Forretningsorden-20250901.pdf)

## Placering
